Save
Ask
Tour
Hide
Share
$789,000
479 Days On Site
10 NELSON StreetWest Perth, ONN0K 1N0
For Sale|Single Family Residence|Active
4
Beds
2
Total Baths
1,999
SqFt
$395
/SqFt
County:
Perth
Call Now: 289-338-0767
Is this the listing for you? We can help make it yours.
289-338-0767

Save
Ask
Tour
Hide
Share
Mortgage Calculator
Monthly Payment (Est.)
$3,600Calculator powered by Showcase IDX, a Constellation1 Company. Copyright ©2026 Information is deemed reliable but not guaranteed.
Photos
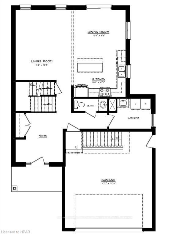
Large 4 bedroom 2,000 sq.ft two-storey with builder upgrade incentives!!! This home built by Feeney Design Build will be located one of Mitchell's newest subdivisions on the South West end of Town. It features an open kitchen and living room plan with a large foyer and laundry on the main floor. There are 4 bedrooms including a large primary bedroom with ensuite and walk-in closet. This plan has an option loft area as well. Call today to complete your selections. Feeney Design Build prides itself on a top-quality build and upfront pricing! You will get a top quality product from a top quality builder.
Save
Ask
Tour
Hide
Share
Listing Snapshot
Price
$789,000
Days On Site
479 Days
Bedrooms
4
Inside Area (SqFt)
1,999 sqft
Total Baths
2
Full Baths
N/A
Partial Baths
N/A
Lot Size
N/A
Year Built
N/A
MLS® Number
X10781688
Status
Active
Property Tax
$1
Maintenance Fees
N/A
Sq Ft Source
N/A
Friends & Family
React
Invite
Recent Activity
| a year ago | Listing updated with changes from the MLS® | |
| a year ago | Status changed to Active | |
| a year ago | Listing first seen on site |
General Features
Attached Garage
Yes
Cross Street
Hwy 23/Blanchard Street To Clayton Street, To Nels
Direction Faces
East
Garage
Yes
Garage Spaces
2
Number Of Stories
2
Parking
OtherAttached
Parking Spaces
4
Property Sub Type
Single Family Residence
Security
Smoke Detector(s)Carbon Monoxide Detector(s)
SqFt Total
1999
Style
2-Storey
Utilities
Cable Available
Water Source
Public
Zoning
R3-17
Interior Features
Basement
UnfinishedFull
Heating
Natural GasForced Air
Laundry Features
In Basement
Bathroom
Dimensions - 3.88 x 1.67Level - Second
Laundry
Dimensions - 2.46 x 2.18Level - Main
Master Bedroom
Dimensions - 4.22 x 3.38Level - SecondFeatures - Walk-In Closet(s)
Save
Ask
Tour
Hide
Share
Exterior Features
Construction Details
Vinyl SidingBrick
Lot Features
On Golf CourseLevel
Patio And Porch
DeckPorch
Pool Features
None
Roof
Asphalt
Listing courtesy of Sutton Group - First Choice Realty Ltd.

Listing information is provided by Participants of the Toronto Real Estate Board. VOW information is provided exclusively for personal, non-commercial use, and may not be used for any purpose other than to identify prospective properties consumers may be interested in purchasing. Information is deemed reliable but not guaranteed. Copyright 2026, Toronto Real Estate Board
Last checked 2026-03-21 08:34 AM UTC

Listing information is provided by Participants of the Toronto Real Estate Board. VOW information is provided exclusively for personal, non-commercial use, and may not be used for any purpose other than to identify prospective properties consumers may be interested in purchasing. Information is deemed reliable but not guaranteed. Copyright 2026, Toronto Real Estate Board
Last checked 2026-03-21 08:34 AM UTC
Neighborhood & Commute
Source: Walkscore
Save
Ask
Tour
Hide
Share


